Ver el plano del barco Ver las fotos(+13)

Alquiler de barcos en Potsdam · 0 — Campi 300 (2017)

4.3

 (0 opinión)

Sin patrón
Profesional
Werder (havel)
Casas flotantes de Leon
4 personas
 · 2 cabinas
 · 4 plazas para dormir
 · 1 baño
Leon
Sin patrón
Tú serás el capitán del barco, por lo que es necesaria una licencia.

Descripción del casas flotantes de Leon

Casas Flotantes - 9m - Campi 300

Disfrute de la tranquilidad del idílico paisaje fluvial de Brandeburgo en la moderna casa flotante sin licencia Nami. La casa de vacaciones flotante está equipada con todo lo necesario para unas relajantes vacaciones en el agua y es autosuficiente durante varios días. ¡Solo quítatelo y siéntete bien! Este equipo te espera: - Gran azotea - Terraza en proa - Escalera de baño - Ventanas panorámicas con mamparas de privacidad - Dormitorio con cama de matrimonio 1,2 x 2m - Salón con sofá cama 1,4 x 2m - Las áreas para dormir se pueden separar mediante una puerta corredera - Juego de sábanas y toallas p.p. - baño con ducha y WC - Mesa de comedor y 4 sillones de exterior - Cocina con estufa a gas, heladera, congelador - Utensilios de cocina, platos, cubiertos. - calentador - pantalla plana - Puesto de gobierno interior - cámara de respaldo - Anclas, defensas, líneas, chalecos salvavidas - Tamaño: 9 x 3,5 m / aprox.27m² - Motor de 9,9 CV, 10 km / h - Depósitos de agua limpia y residual de 250l - Depósito de gasolina de 50 l - sistema solar - Tomas de 230V - autosuficiente por hasta 3 días Si es necesario, puede pasar la noche en el barco en el puerto base. Allí también encontrará instalaciones sanitarias gratuitas y una pizzería. También dispone de plazas de aparcamiento y conexión WiFi gratuita.

Leer más

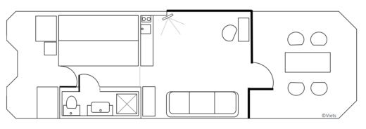
Plano del barco

Houseboat 0 Campi 300 Plano del barco
4 personas
2 cabinas
4 plazas para dormir
1 baño

Equipamiento disponible en el casas flotantes

Dinghy
Ropa de cama
Agua caliente
Toma de corriente de 220 V
Horno/cocina
Frigorífico
Congelador
Escalera de baño
Mesa exterior
Inversor cargador
Ver todo el equipamiento (+6)
Ver todo el equipamiento (+11)

Servicios ofrecidos por de la casas flotantes

Limpieza final
Otro
Ver todos los servicios
Ver todos los servicios

Calendario

Añade las fechas para ver el precio

Consultar la lista de precios Ver las promociones
Eliminar las fechas

4.3

 (0 opinión)

Opiniones generales

Conformidad del barco
rating-stars
Comodidad a bordo
rating-stars
Nivel de mantenimiento
rating-stars
Limpieza
rating-stars
Acogida y comunicación
rating-stars
Relación calidad-precio
rating-stars

0 opinión 
?

Las opiniones se ordenan según su puntuación (las mejores primero)
Leon

Propuesto por Leon

Se unió en marzo 2022  ·  Propietario profesional

4.5

 (5 opiniones)

Datos de contacto validados

Localización

Ubicación casas flotantes: Werder (havel), Potsdam

Ubicación casas flotantes: Potsdam

Características

Modelo: Campi 300
Año: 2017 (Reacondicionado en 2025)
Eslora: 9m
Manga: 3m
Capacidad a bordo: 4 personas
Número de cabinas: 2
Número de camas: 4
Número de baños: 1
Ver todas las características
Ver menos
Precio del alquiler
Tasas del servicio e impuestos
Descuento 

Condiciones

Check-in y check-out

Hora de recogida: 3:00 PM
Hora de entrega: 11:00 AM

Normas de la embarcación

Fianza: 1.000 €
?
Carburante incluido en el precio: No
Licencia náutica requerida:
Edad mínima para el alquiler: 18 años

Política de desistimiento y cancelación

Derecho de desistimiento para esta reserva:
No. Saber más
Política de cancelación
Confirma las fechas del viaje para ver la política de cancelación.

Verificar la disponibilidad de barcos similares

Cerrar

Cerrar
Lista de precios
01 January - 30 June
1.470 / semana Ver el precio detallado
1 día 340
2 días 680
3 días 1.020
4 días 1.130
5 días 1.240
6 días 1.350
1 semana 1.470
01 July - 31 August
1.890 / semana Ver el precio detallado
1 día 415
2 días 830
3 días 1.240
4 días 1.350
5 días 1.580
6 días 1.690
1 semana 1.890
01 September - 31 December
1.470 / semana Ver el precio detallado
1 día 340
2 días 680
3 días 1.020
4 días 1.130
5 días 1.240
6 días 1.350
1 semana 1.470